Trilocale in vendita

Milano, Via Francesco Denti - Romagna Pascoli
€ 599.000
3 locali 3 locali
90 Mq 90 Mq
2 bagni 2 bagni

Trilocale in vendita

Milano, Via Francesco Denti - Romagna Pascoli

Descrizione annuncio

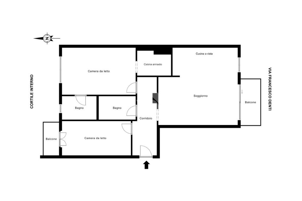
Via Francesco Denti, 1 - Nelle immediate vicinanze della sede storica dell'Università Politecnico di Milano, proponiamo in vendita un trilocale completamente ristrutturato di 90 mq, posto al 3° piano di uno stabile signorile degli Anni '60 servito da portineria attiva per l'intera giornata e doppio ascensore.

L'immobile gode di una doppia esposizione contrapposta ed offre spazi ben organizzati: un corridoio centrale conduce ad una luminosa zona giorno di 26 mq con cucina a vista, provvista di un ampio balcone con affaccio a Sud su Via Francesco Denti. Sul lato opposto la camera da letto padronale include un bagno en suite e una cabina armadio; infine troviamo un secondo bagno e una cameretta con balcone.

La proprietà è stata valorizzata con grande attenzione al dettaglio grazie ad una ristrutturazione integrale completata nel 2023, durante la quale è stato installato un impianto di climatizzazione con split in tutti gli ambienti.

Completa la proprietà una cantina pertinenziale al piano -2.

Soluzione abitativa ideale per chi cerca un alloggio pronto all'uso in una zona ben collegata con i principali punti di interesse del capoluogo lombardo.

Mostra tutto

Nelle vicinanze

Trasporto pubblico Trasporto pubblico
Piola
Piola
600 m
Lima
Lima
1,2 Km
stazione di Milano Dateo
stazione di Milano Dateo
1,1 Km
stazione di Milano Lambrate
stazione di Milano Lambrate
1,4 Km
Viale Romagna - Via Pascoli
Viale Romagna - Via Pascoli
70 m
Ricariche auto elettriche Ricariche auto elettriche
A2A Isola Digitale PoliMi
390 m
A2A PoliMi
410 m
Becharge Milano Palestrina
470 m
BeCharge Milano Piola
470 m
PoliMi - Dipartimento di Elettronica
690 m
Scuole Scuole
Scuola elementare Leonardo da Vinci
170 m
Facoltà di Scienze Agrarie e Ambientali
230 m
Università degli Studi di Milano
270 m
Dipartimento di Fisiopatologia e dei Trapianti
400 m
Dipartimento di Scienze della Terra "Ardito Desio"
420 m
Farmacia Farmacia
Comunale
60 m
Farmacia Sozzi
380 m
Dott. Calò
470 m
Rossetto
510 m
San Riccardo
610 m
Ospedali Ospedali
Istituto Neurologico Carlo Besta
520 m
Istituto Nazionale dei Tumori
520 m
Istituto Clinico Città Studi
1,0 Km
Ospedale Macedonio Melloni
1,1 Km
Centro Medico Milano Tree Of Life S.r.l.
1,9 Km
Supermercati Supermercati
Sigma
430 m
Ilma
480 m
Punto Simply
530 m
Carrefour
580 m
Bio c' Bon
590 m
Negozi Negozi
Grano e Caffè
60 m
Pane e Sfizi
250 m
Negozi
290 m
My Auchan
460 m
Neglia
470 m
Bar Bar
Gelato di Gaia
60 m
Bar
250 m
Bar dei Sogni
270 m
Bar Venere
460 m
Union
460 m
Ristoranti Ristoranti
Ristoranti
250 m
Charmant
410 m
SeRist
420 m
Applejack's Lobster Burger
450 m
Milord
460 m
Mostra tutto

Caratteristiche

Rif.:
61160029
Piano:
3 di 6 con ascensore (Piano medio)
Balconi:
2
Camere da letto:
2
Arredamento:
Assente
Condizionamento:
Autonomo
Mostra tutto
Prezzo Prezzo
€ 599.000
Rata mutuo Rata mutuo
€ 2.797 / mese
Spese annue Spese annue
€ 3.000
Proponi il tuo prezzoProponi il tuo prezzo

Classe Energetica

C
C
C
C
C
C
C
C
C
EP globale non rinnovabile:
95.87 kW h/m² anno
EP globale rinnovabile:
28.49 kW h/m² anno
EP invernale del fabbricato:
EP estiva del fabbricato:
Anno di costruzione:
1960
Riscaldamento:
Centralizzato
Tipo impianto:
A pavimento
Tipo alimentazione:
Metano

Ti interessa visionare l'immobile?

Fissa un appuntamento  Fissa un appuntamento

Richiedi informazioni

Clicca su Leggi per aprire l'informativa
* Questi campi sono obbligatori

Calcola il tuo mutuo

Semplice e senza impegno
Anticipo

( % )
Mutuo

( % )

pochi semplici passi

inserisci i tuoi dati
Questionario completato
Grazie per aver richiesto un appuntamento senza impegno con un nostro Consulente del Credito e Assicurativo.

Hai inserito correttamente tutti i dati necessari e a breve riceverai una e-mail con un link da convalidare per inviare i tuoi dati.
Affiliato
Progetto Milano 4 Srl
Via Gustavo Modena, 15 20129 Milano (MI)

Il nostro staff


  • Federica Nicoli
    Coordinatrice

  • Giuseppe Ricciardi
    Affiliato

  • George Giuliano Ureche
    Collaboratore
Via Gustavo Modena, 15 20129 Milano (MI)
Zona: Pascoli - Castel Morrone
Mostra su mappa
Orari: Lunedì - Venerdì: 09:00 - 13:00 / 15:00 - 19:30. Sabato: 09:00 - 13:00
Affiliato
Progetto Milano 4 Srl
Via Gustavo Modena, 15 20129 Milano (MI)

2026 Tecnocasa Franchising S.p.A. - P. IVA 08365160152 - Via Monte Bianco 60/A 20089 Rozzano (MI). Ogni agenzia ha un proprio titolare ed è autonoma. Privacy policy | Policy utilizzo | Cookie policy